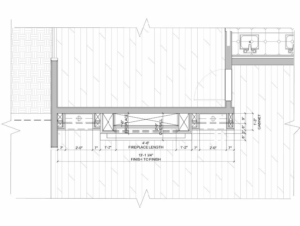
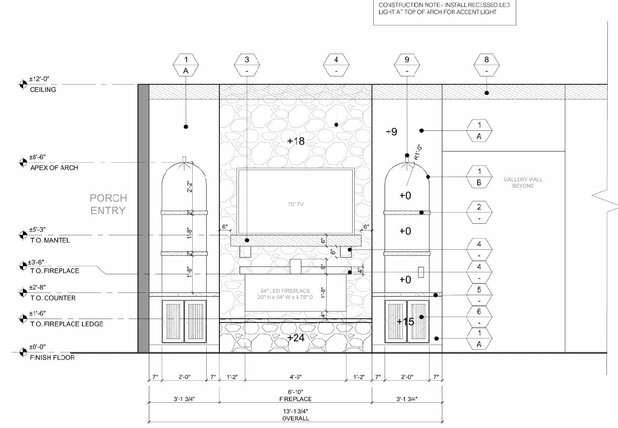
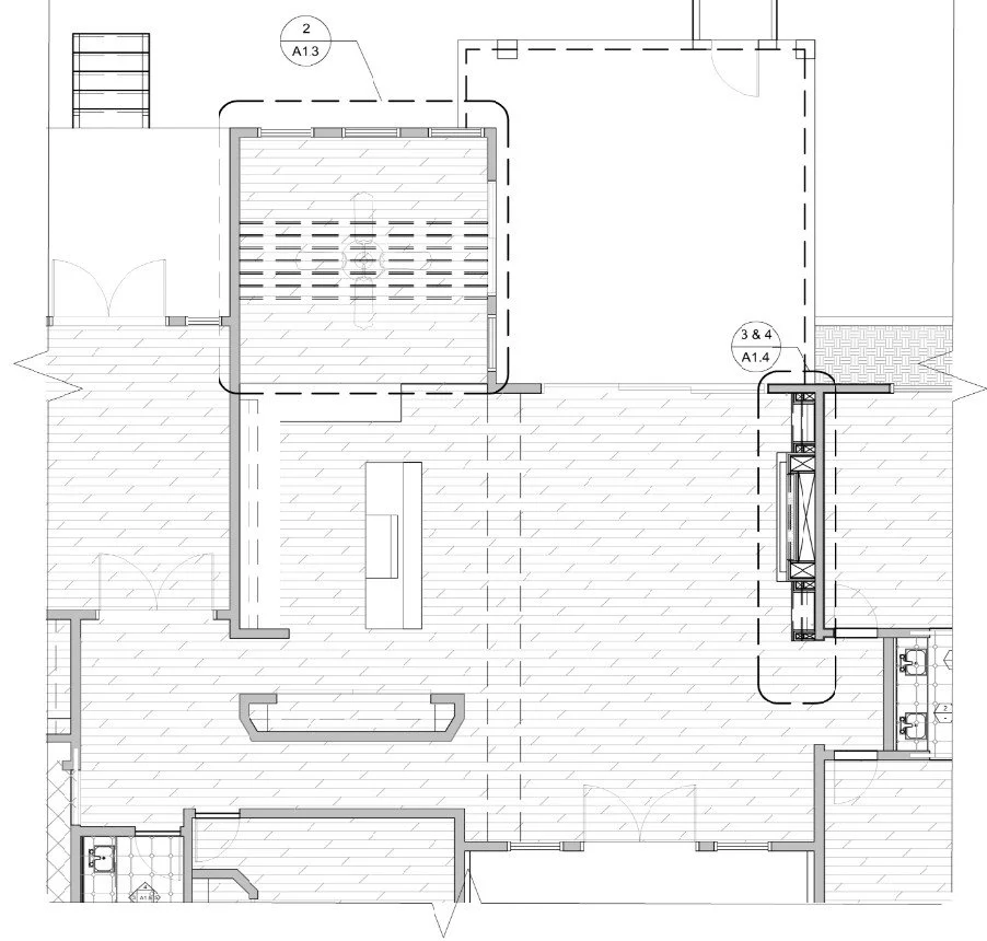
ENTRY + LIVING

3D RENDERINGS

MATERIALS + ELEVATIONS

KITCHEN + DINING

Texas Jones Residence

Custom Interior Design Project

start date | 10.31.2022

construction complete | 10.01.2023

3D RENDERINGS

material + elevations

Texas Jones Residence

Custom Interior Design Project

start date | 10.31.2022

construction complete | 10.01.2023

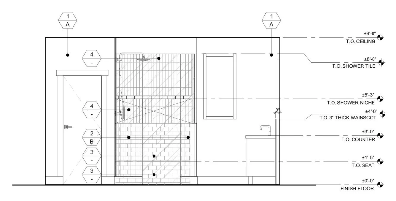
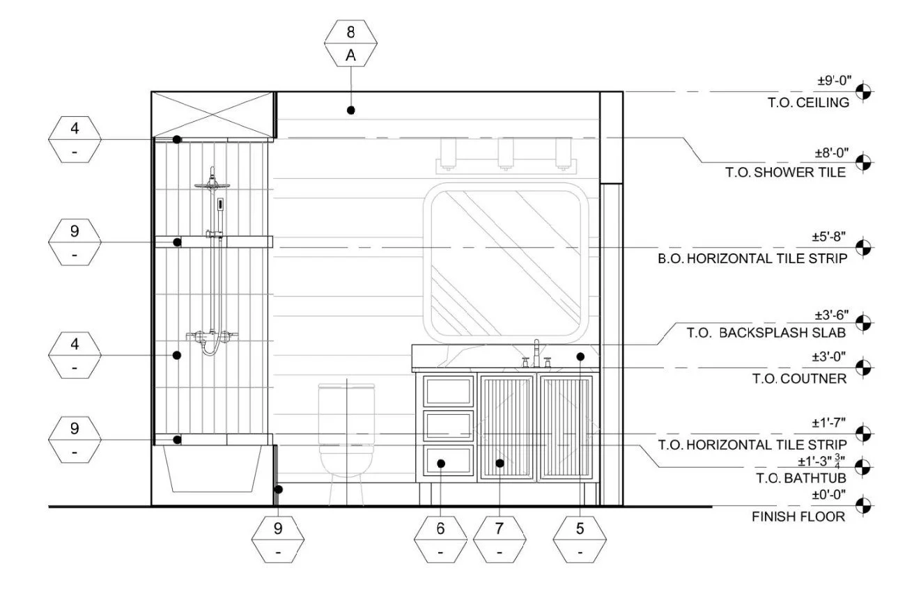
MASTER BATH

3D RENDERINGS

material + elevations

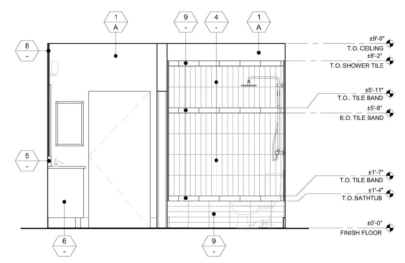
GUEST BATH

3D RENDERINGS

material + elevations

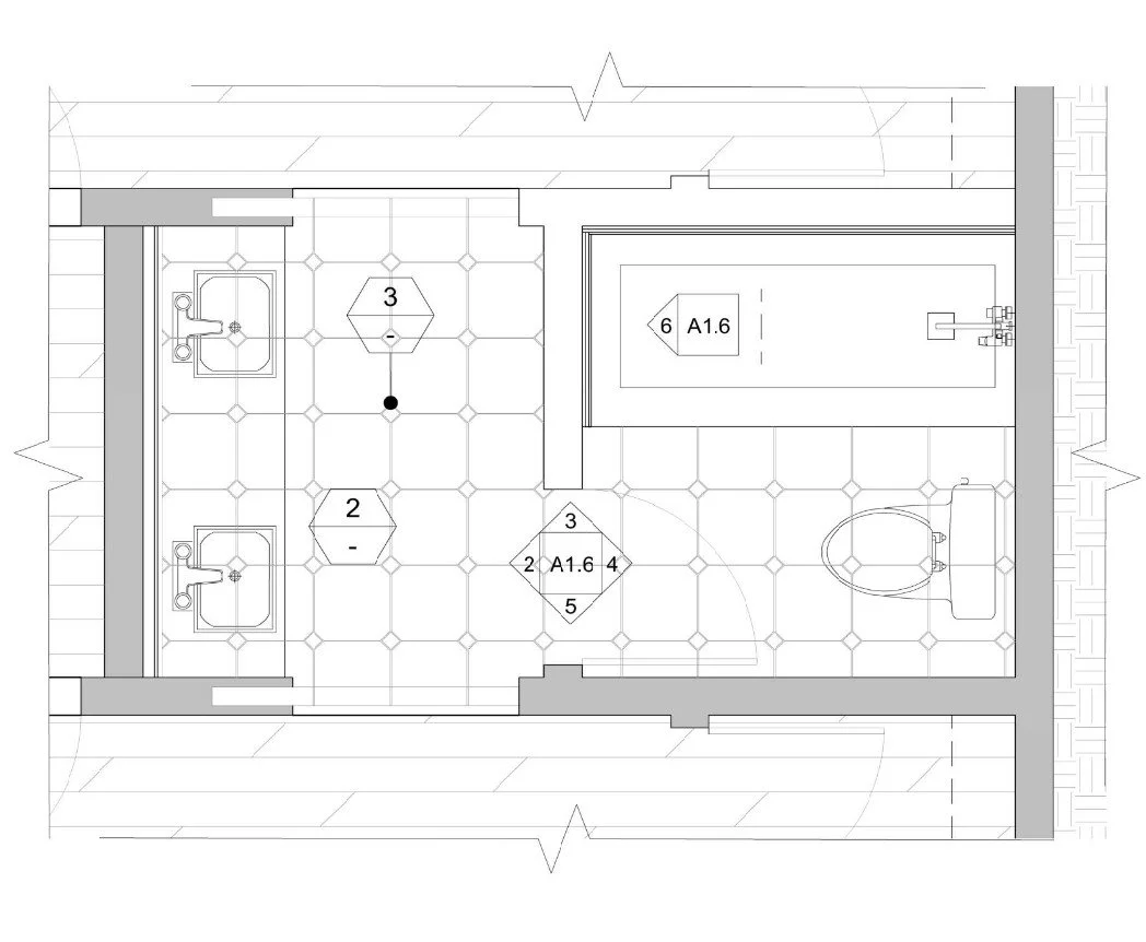
jack + jill bath

3D RENDERINGS

material + elevations

UTILITY ROOM

3D Renderings

MATERIAL + ELEVATIONS

Next
Next

Construction Documents