‘texas jones’ residence
In the fall of 2022, construction had already been underway when Kelsey was approached by her brother, a Commercial Construction Site Supervisor to help finish the Interior Design + Exterior Landscape phase of his custom home. The goal was to fill in the gaps where the previous contractor had left off and answer the questions that still remained. We started with a contemporary ranch-style design package, which consisted of 3D Architectural Renderings and Construction Documents with materials specified and locally sourced, ultimately turning into a two-year journey with regular on-site visits to Martindale, Texas.
Client
Kyle & Christina Jones
Start Date
10/31/2022
Construction Complete Date
10/14/2024

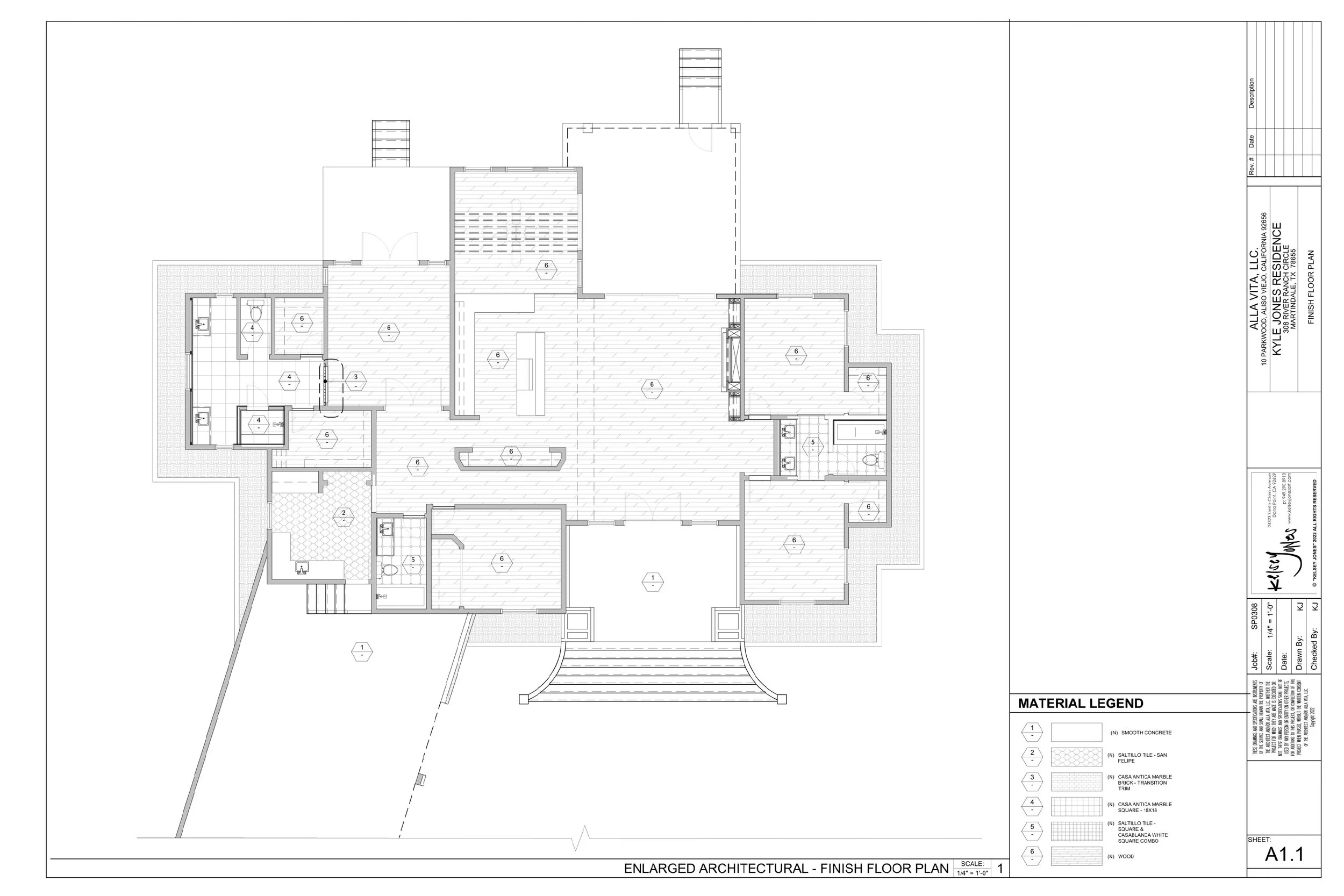
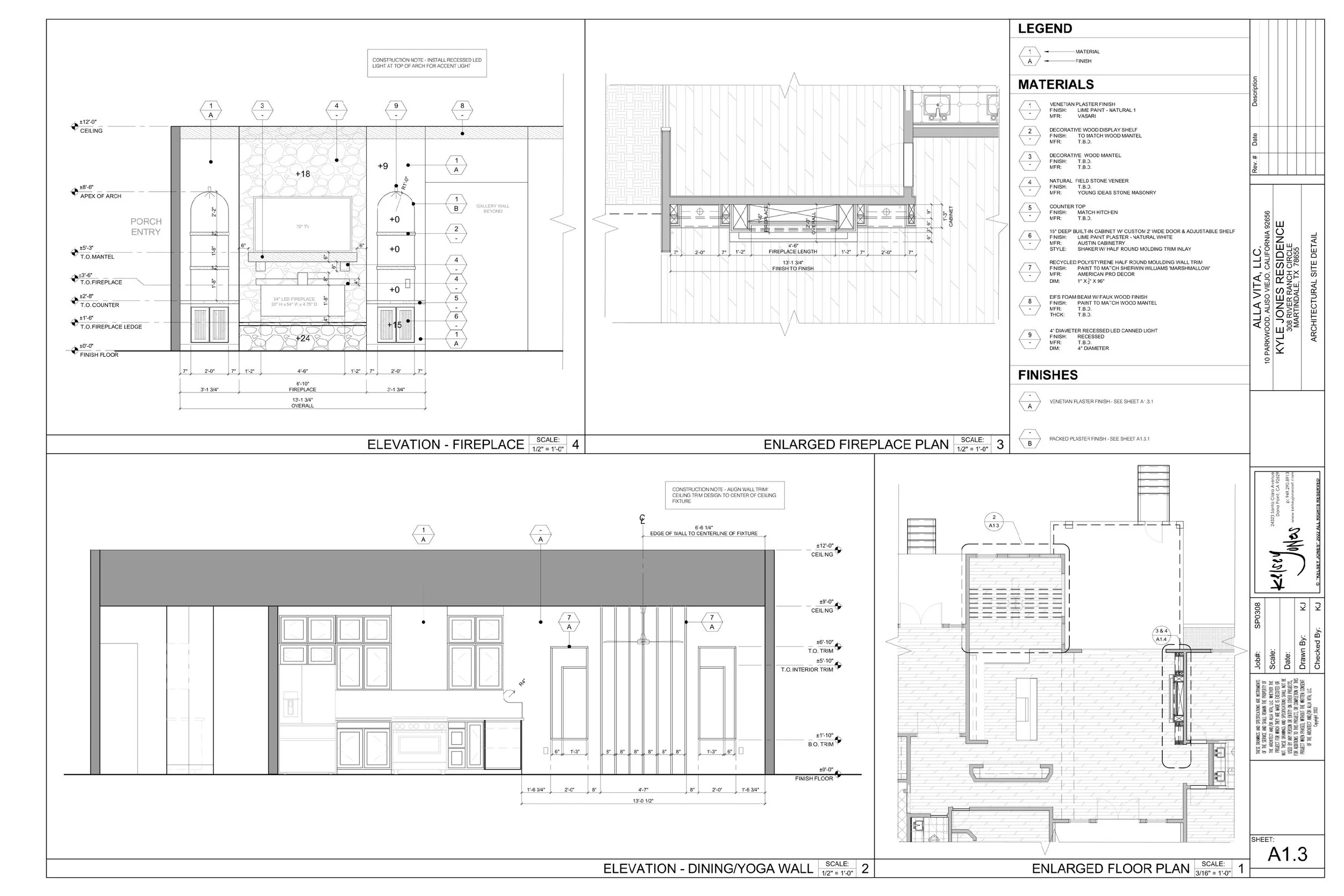
construction documents
Nearly three months of problem-solving, budgeting, Excel spreadsheets, material-sourcing, coordination and client-approval, it was a mad dash to stay on schedule with the construction timeline.
3d Architectural Renderings
After completing a to-scale 3D model of the current framework, 3D renderings proved to be essential in finalizing design & style decisions.