DANA POINT

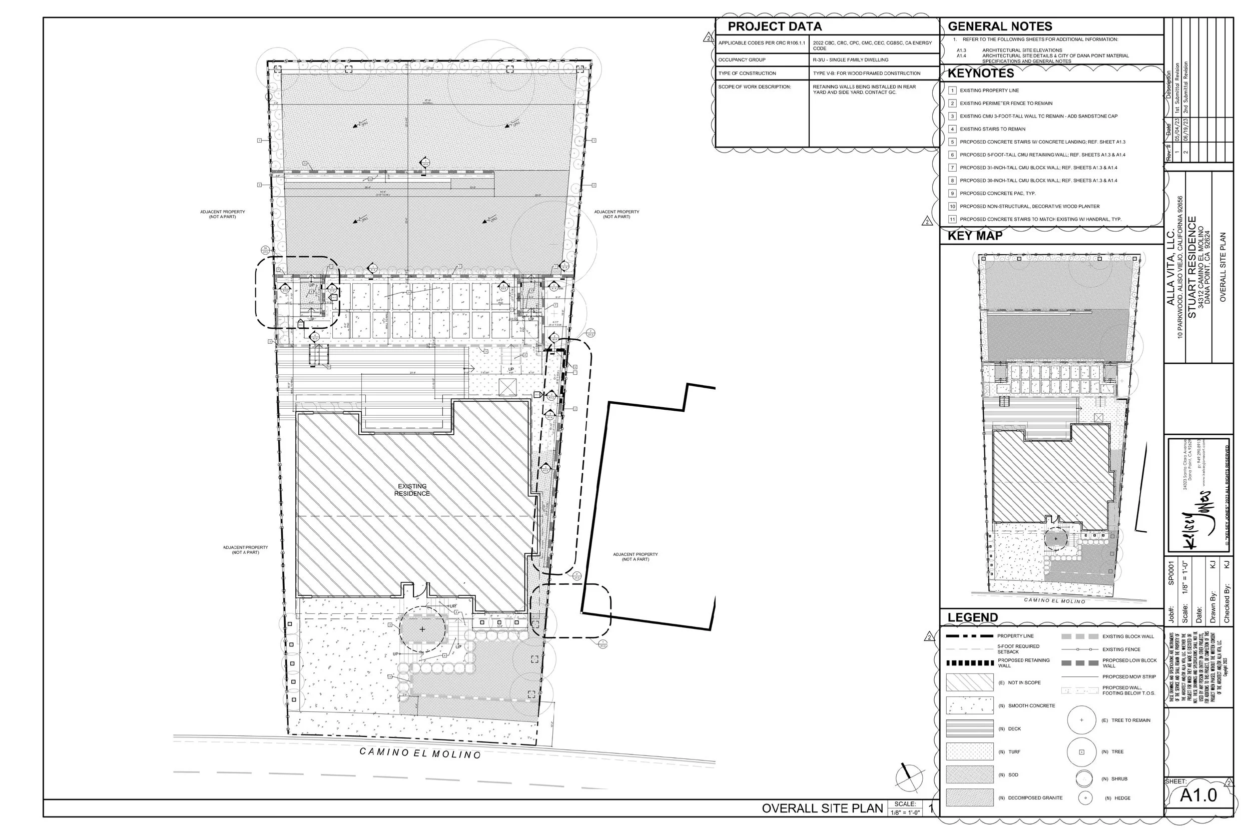
An exterior renovation located off Camino El Moline in Dana Point, CA. This project received city-approval in the early summer of 2023. Construction was completed early winter of 2024.

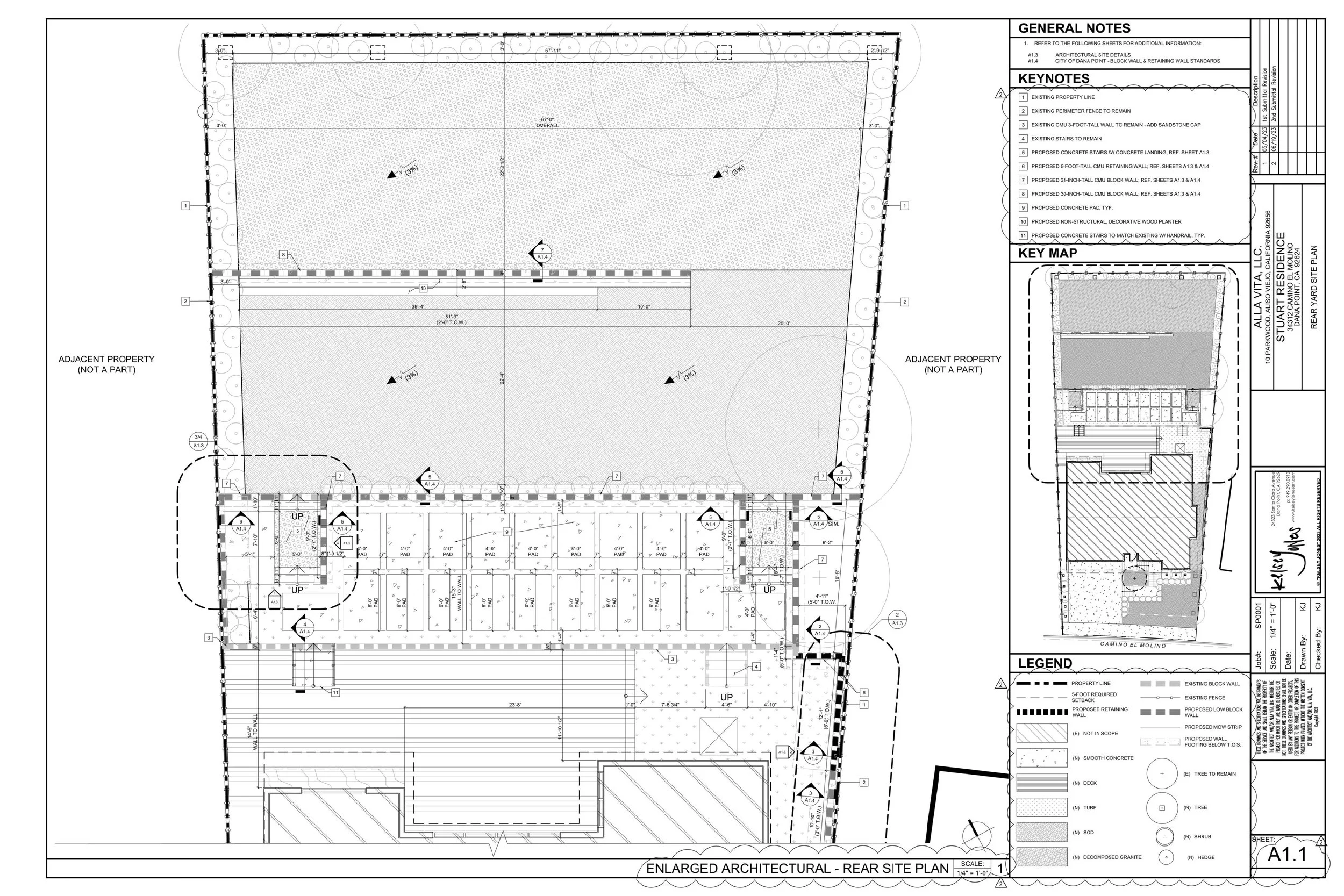
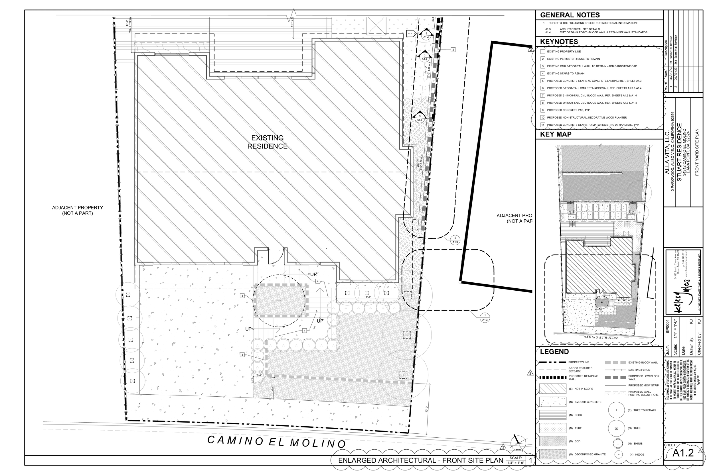
city-approved rear yard rennovation

Camino el molino, dana point, california

Architectural Construction Documents

TERRACING CONSTRUCTION Photos

Early Spring 2023 after City-Approved Wall Permits were received.

RETAINING WALL RENDERINGS

Phase two of conceptual design option where terracing the slope maximized the overall usable-space.

Wall Construction Progression Photos

Fall 2023

Next
Next

Jasmine Ave